home

 

services

 

personnel

 

contact

 

company information

 

AUSTIN WINKLEY & ASSOCIATES

 

click to return to selected projects

 

   

 

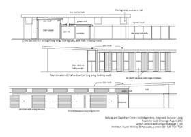
  centre for disabled people in Dagenham

As architects with training in the principles of disabled access, we were approached by the centre for inclusive living in Dagenham to design a feasibility study for a new building for them.

This single storey building incorporated a series of external garden spaces which we thought of as additional "rooms" for the use of the inhabitants.

We also proposed some innovative ecological features, such as an internal rammed-earth wall, which was to act as a heat-sunk in the summer months and keep the building cool without the use of air conditioning.

Total project cost: £4

 

     
           
           
           
           
           
           
           
           
           
           
 

click to return to selected projects